• Haus zum Verkauf Bordeaux - Bouliac, Südwesten, Frankreich
    1 320 000 EUR

Wohnfläche 220 m²220 m²Länderei 250 m²250 m²Handlung 2 500 m²2 500 m²4 Schlafzimmer4 Schlafzimmer6 Räume6 Räume2 Badezimmer2 BadezimmerAussicht Uneingeschränkt Uneingeschränkt PoolPool

BOULIAC - ENTWURF EINES ARCHITEKTENHAUSES - JOHN TAYLOR

  • V0516BX
  • Verkauf
  • Haus

In einer ruhigen Sackgasse in Haut Bouliac gelegen, bietet dieses Immobilienprojekt eine seltene Gelegenheit in einer privilegierten Umgebung.

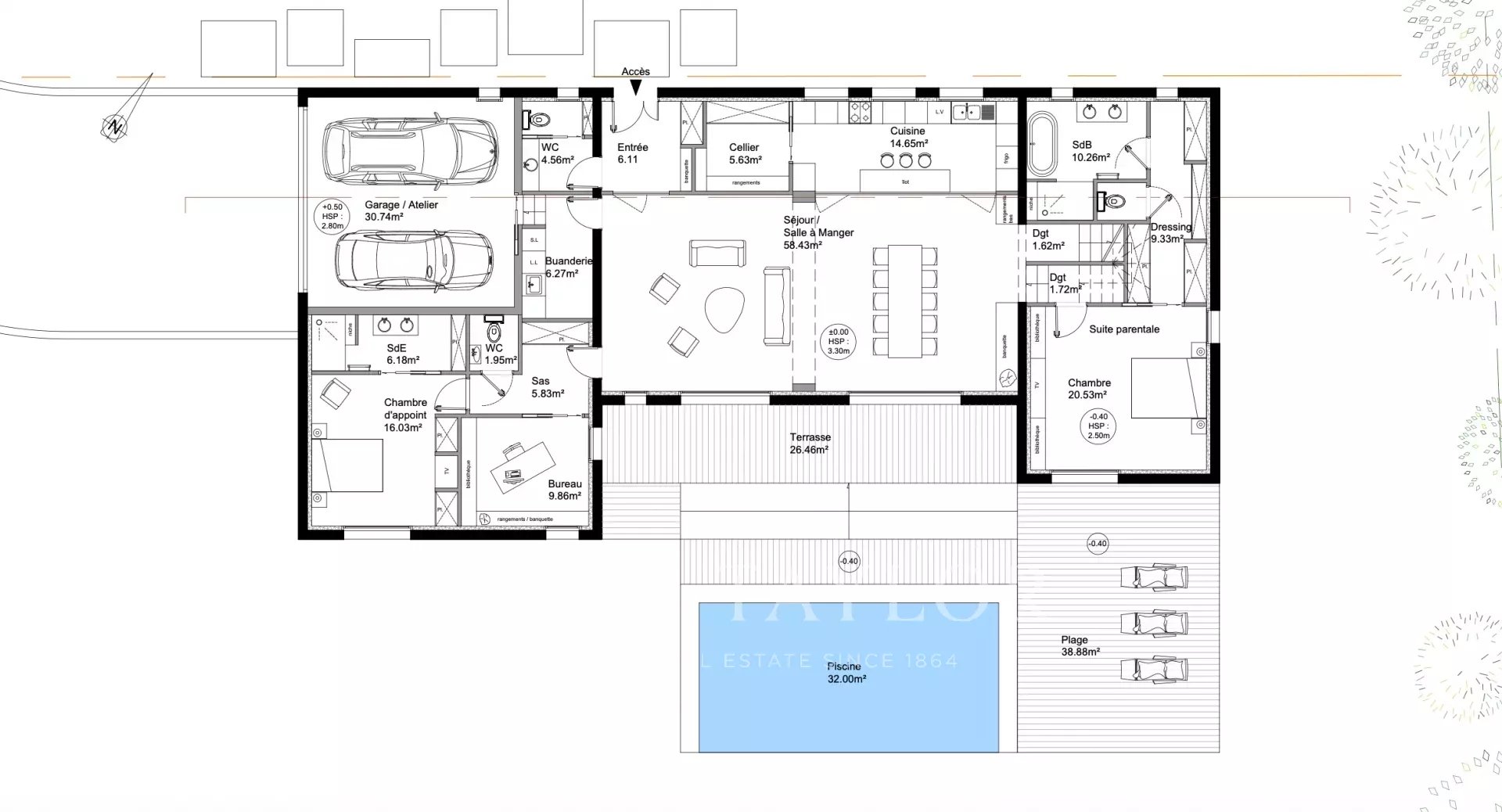
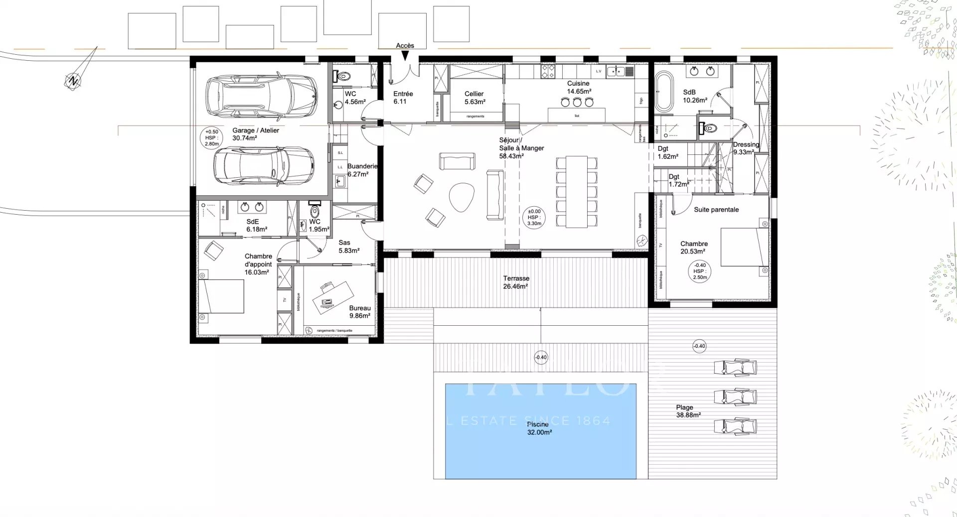
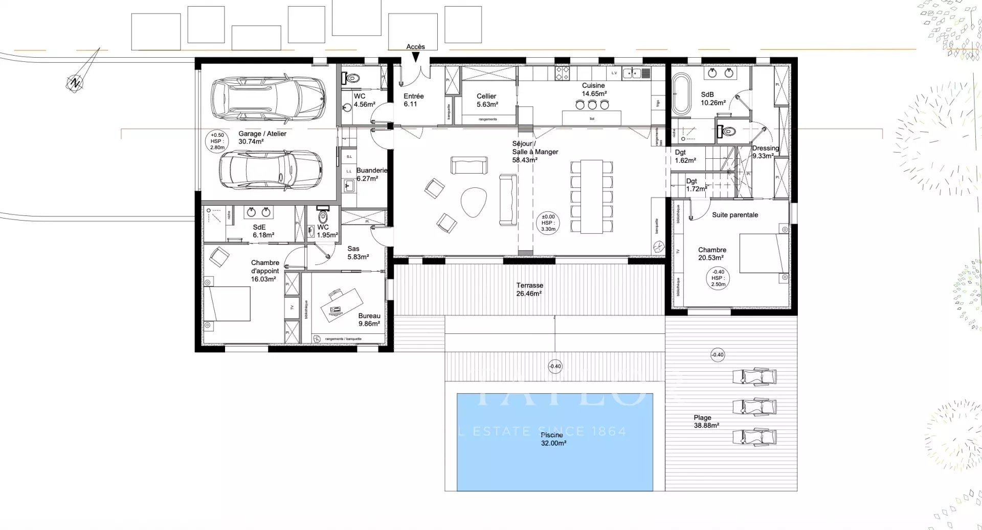
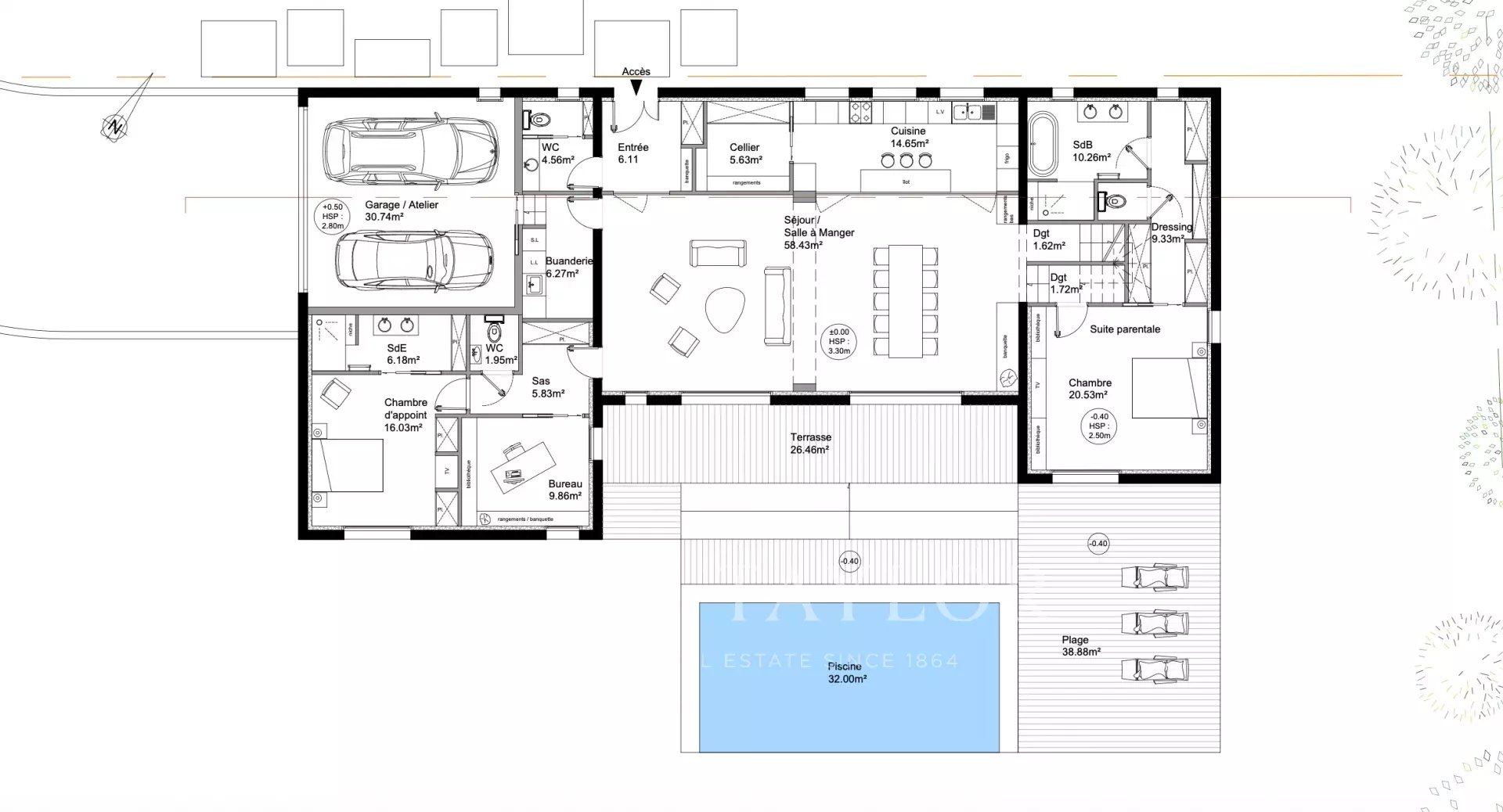
Das 2.500 m² große Grundstück ist von der öffentlichen Straße zurückversetzt und bietet einen atemberaubenden Blick auf einen geschützten Wald, der der zukünftigen Residenz Ruhe und Privatsphäre verleiht. Das Gebäude mit einer Fläche von ca. 220 m² ist nach Südwesten ausgerichtet, sodass Sie den ganzen Tag über von der natürlichen Helligkeit profitieren können.

Das Haus wurde für ein harmonisches Familienleben konzipiert und setzt auf großzügige Räume und eine optimale Ausrichtung. Das geräumige Wohnzimmer, das fast 60 m² groß ist und eine Deckenhöhe von 3,30 m hat, öffnet sich zu einer Terrasse ohne Gegenüber, die ideal ist, um Gäste zu empfangen oder sich in aller Privatsphäre zu entspannen. Von hier aus gelangt man zu einem Pool, um die natürliche Umgebung in vollen Zügen zu genießen.

Das Layout umfasst ein geschlossenes Büro mit Blick auf den Wald, das sich für Telearbeit eignet, vier Schlafzimmer mit Badezimmern sowie eine Master-Suite mit Badezimmer und Ankleidezimmer, die Komfort und Privatsphäre für jeden garantiert. Eine Doppelgarage vervollständigt diesen Vorschlag und bietet praktische und sichere Parkmöglichkeiten.

Dieses Projekt ermöglicht die Gestaltung einer raffinierten, hellen Residenz in Harmonie mit der Umgebung in einem beliebten Sektor von Haut Bouliac, wo sich Komfort und Natur für eine außergewöhnliche Lebensqualität treffen.

Der Wert des Grundstücks beträgt 650.000 € (einschließlich Maklergebühren zu Lasten des Käufers). Der Architektenauftrag, der Bau und seine Überwachung werden mit 670.000 € beziffert.

Kontaktieren Sie uns noch heute, um weitere Informationen zu diesem Projekt zu erhalten.

Energieverbrauch
Emmissioneinschätzung

Umgebung

  • Stadtzentrum
  • Tennis
  • Meer
  • TGV Bahnhof

luxusimmobilienagentu BORDEAUX
  • Sud Ouest Résidences
    168 rue Fondaudège
  • 33000 BORDEAUX
  • Gironde, FRANKREICH

John Taylor
Online-Anfrage

* Pflichtfelder
Die gesammelten Informationen sind notwendig, um Ihre Anfrage zu bearbeiten. Sie haben jederzeit das Recht, auf Ihre Daten zuzugreifen, sie zu ändern und zu löschen.