• Haus zum Verkauf Bordeaux - Le Bouscat, Südwesten, Frankreich
    990 000 EUR

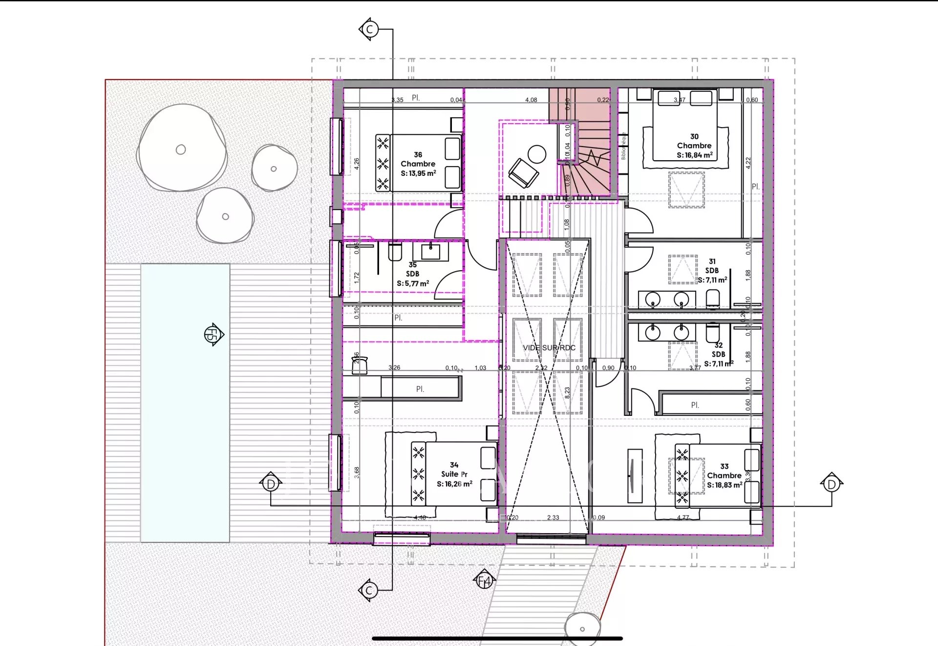
Wohnfläche 245 m²245 m²5 Schlafzimmer5 Schlafzimmer7 Räume7 Räume4 Badezimmer4 BadezimmerAusrichtung South South Aussicht Garten Garten Garten / Gärten 250 m²250 m²KlimaanlageKlimaanlage

Parc Bordelais - Renovierungsprojekt - John Taylor

  • V0423BX
  • Verkauf
  • Haus

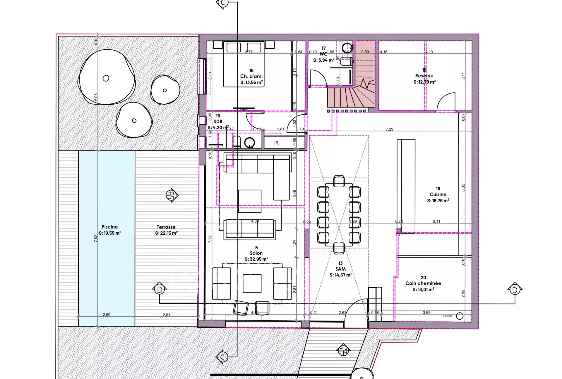
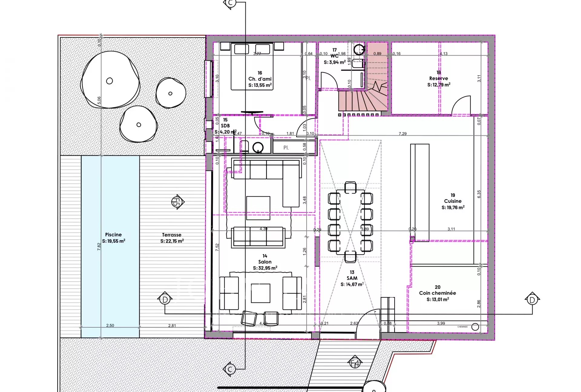
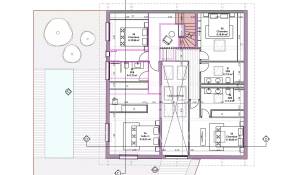
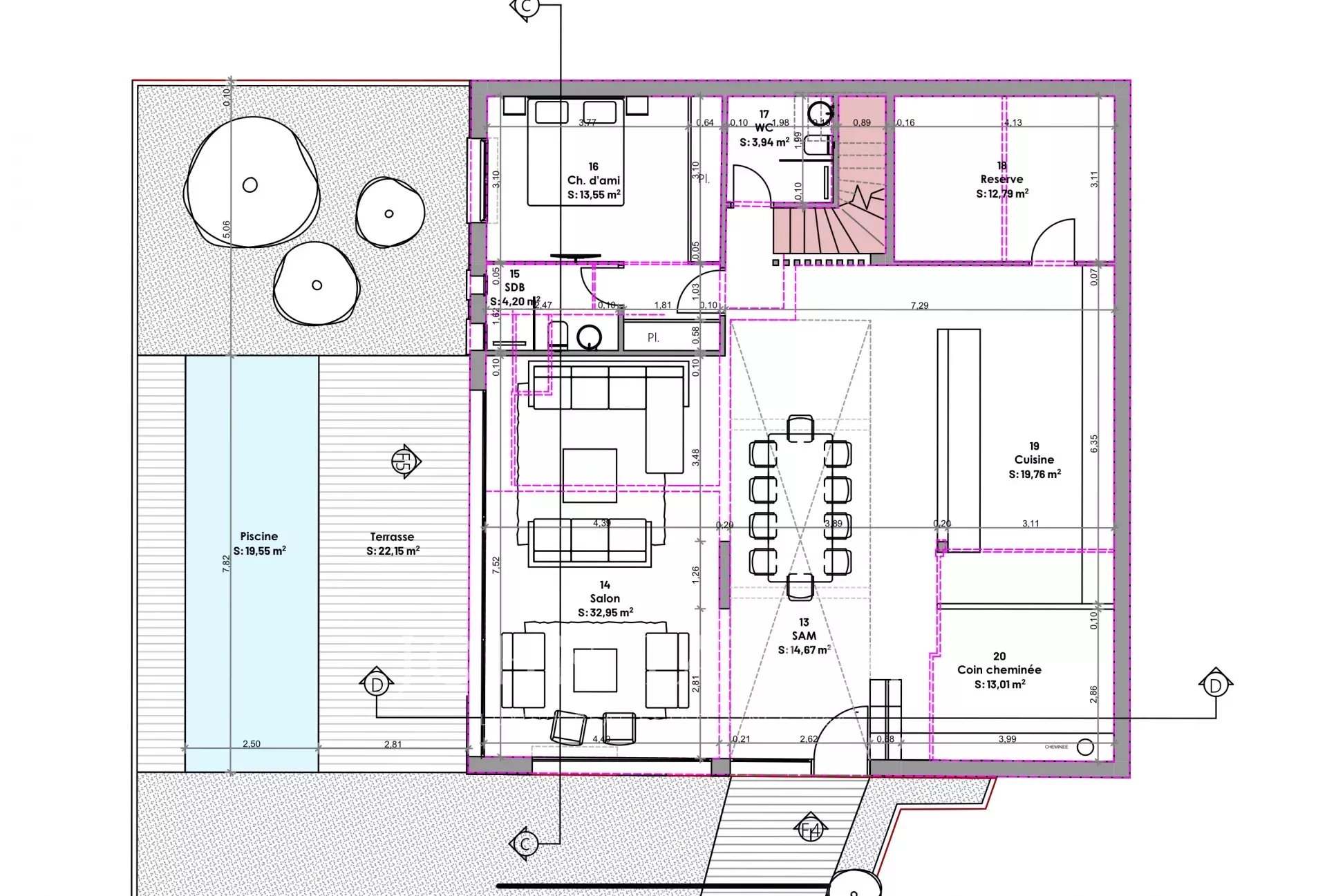
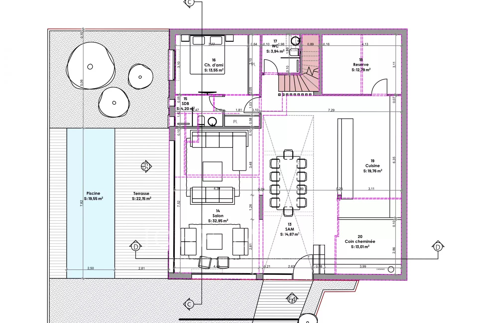
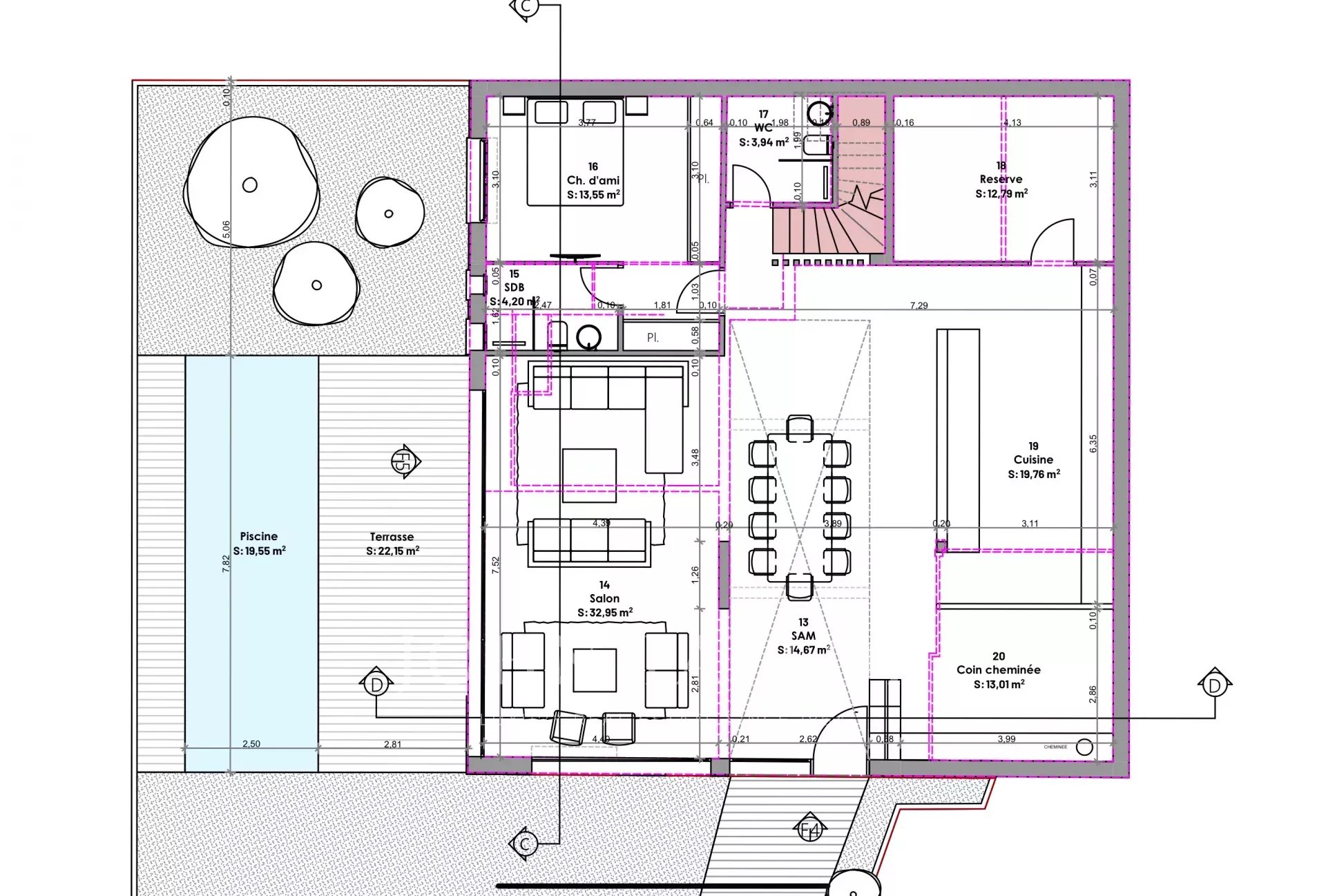
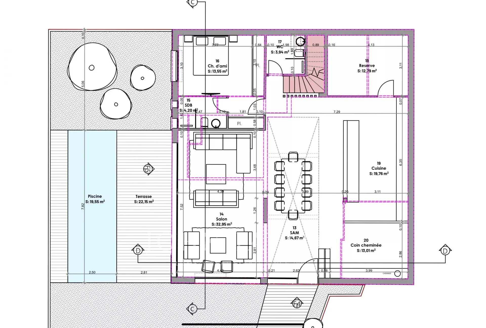
Dieses 245 m² große, zu renovierende Haus liegt versteckt in der zweiten Reihe einer ruhigen Wohnstraße in der Nähe des Parc Bordelais und profitiert von einer gültigen und bereinigten Baugenehmigung.

Das Haus erstreckt sich über zwei Ebenen und bietet im Erdgeschoss großzügige, lichtdurchflutete Empfangsräume, die sich zu einem nach Süden ausgerichteten Garten hin öffnen.

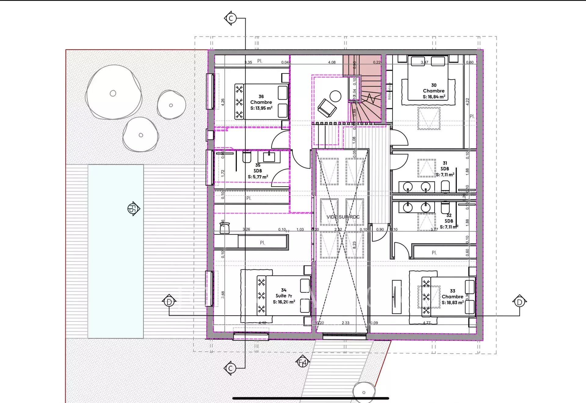
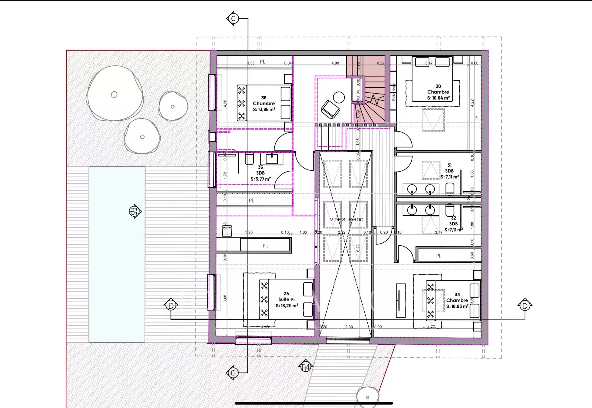
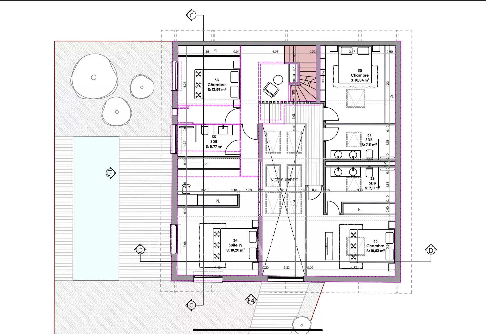
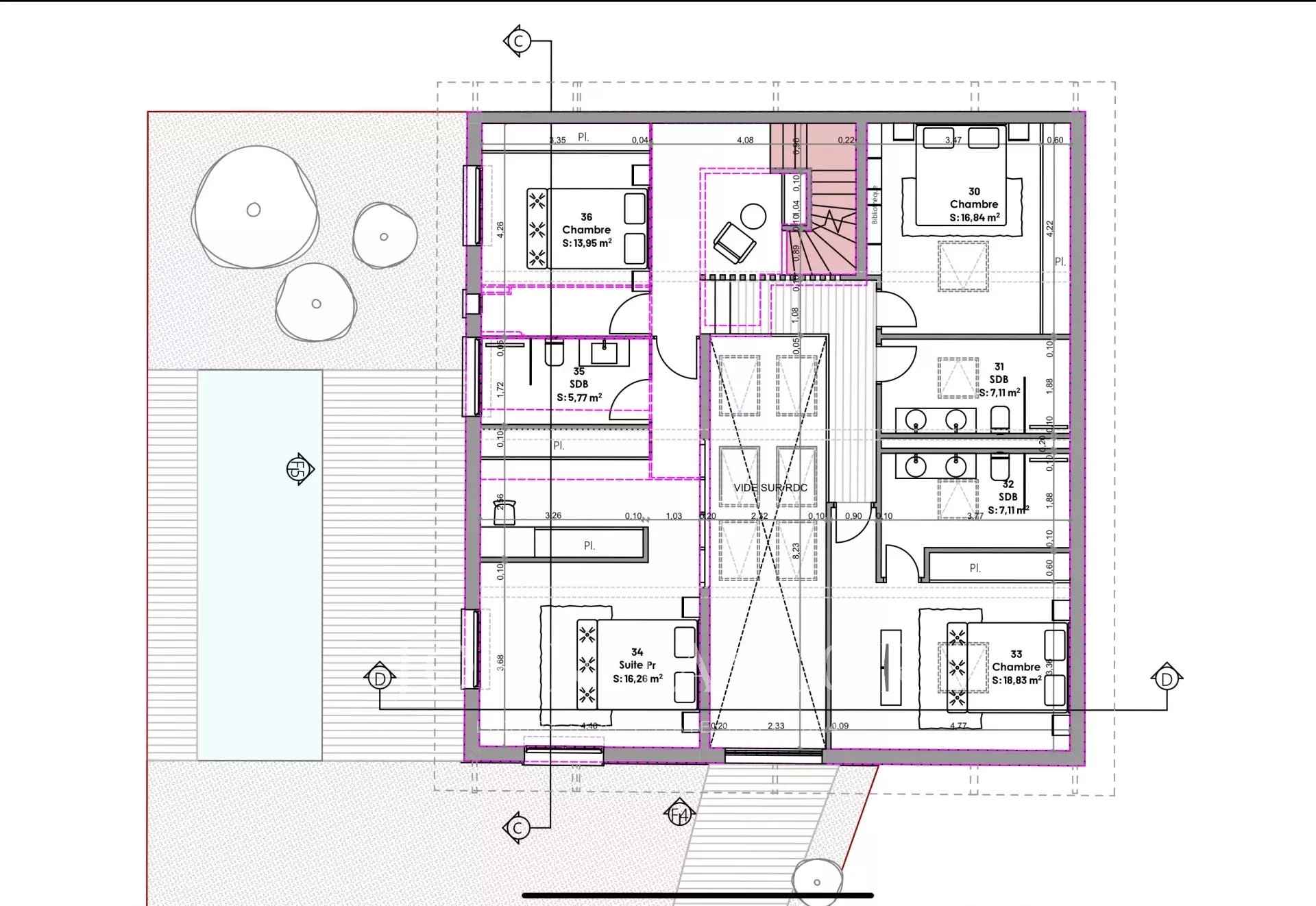
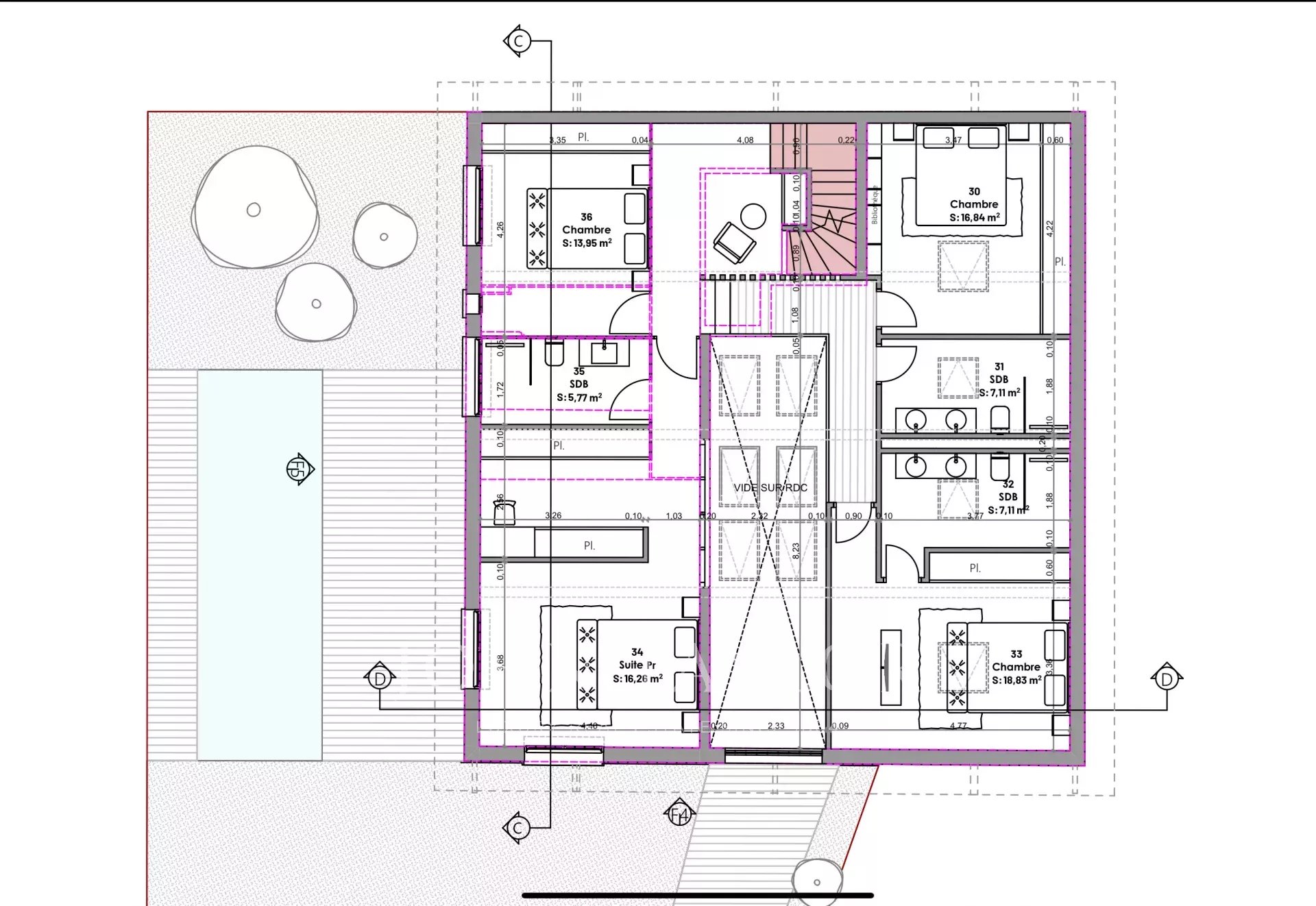
Im Obergeschoss, um einen eleganten, auf eine Kathedraldecke hin offenen Gang herum, befinden sich vier Schlafzimmer und mehrere Badezimmer in einer schönen Harmonie von Volumen und Perspektiven.

Das auf 300.000 € veranschlagte Bauvolumen ermöglicht es Ihnen, Ihren Kostenrahmen zu kontrollieren und gleichzeitig die Endbearbeitung nach Ihrem Geschmack zu gestalten.

Das fast 300 m² große Grundstück ist komplett eingezäunt und bietet Platz für eine große Terrasse, einen Pool sowie einen Parkplatz für zwei Fahrzeuge.

Eine seltene Gelegenheit, einen hochwertigen Familienwohnsitz in ruhiger Lage zu errichten und gleichzeitig die unmittelbare Nähe des Parc Bordelais, der renommierten Schulen, der Verkehrsmittel und der Geschäfte zu genießen.

Eine seltene Gelegenheit, die bei John Taylor Bordeaux, Ihrem zuverlässigen Partner für außergewöhnliche Immobilien, erhältlich ist. Kontaktieren Sie uns jetzt für eine private Besichtigung...

Energieverbrauch
Emmissioneinschätzung

Umgebung

  • Arzt
  • Autobahn
  • Bus
  • Flughafen
  • Grundschule
  • Kino
  • Klink
  • Läden
  • Mittelschule
  • Park
  • Stadtzentrum
  • Straßenbahn
  • Supermarkt
  • TGV Bahnhof

luxusimmobilienagentu BORDEAUX
  • Sud Ouest Résidences
    51 Cours Georges Clemenceau
  • 33000 BORDEAUX
  • Gironde, FRANKREICH

  • Energie – Geringe geschätzte jährliche Kosten bei normaler Nutzung : 3 952 €
    Energie – Hohe geschätzte jährliche Kosten bei normalem Gebrauch : 5 348 €
John Taylor
Online-Anfrage

* Pflichtfelder
Die gesammelten Informationen sind notwendig, um Ihre Anfrage zu bearbeiten. Sie haben jederzeit das Recht, auf Ihre Daten zuzugreifen, sie zu ändern und zu löschen.