• Exklusiv

  • Grundstück zum Verkauf Santiago Do Cacém, Comporta, Portugal
    1 176 000 EUR

7-Hektar-Grundstück mit genehmigtem Projekt für ein Haus von 800m² | Santiago do Cacém

  • V0608CP
  • Verkauf
  • Grundstück

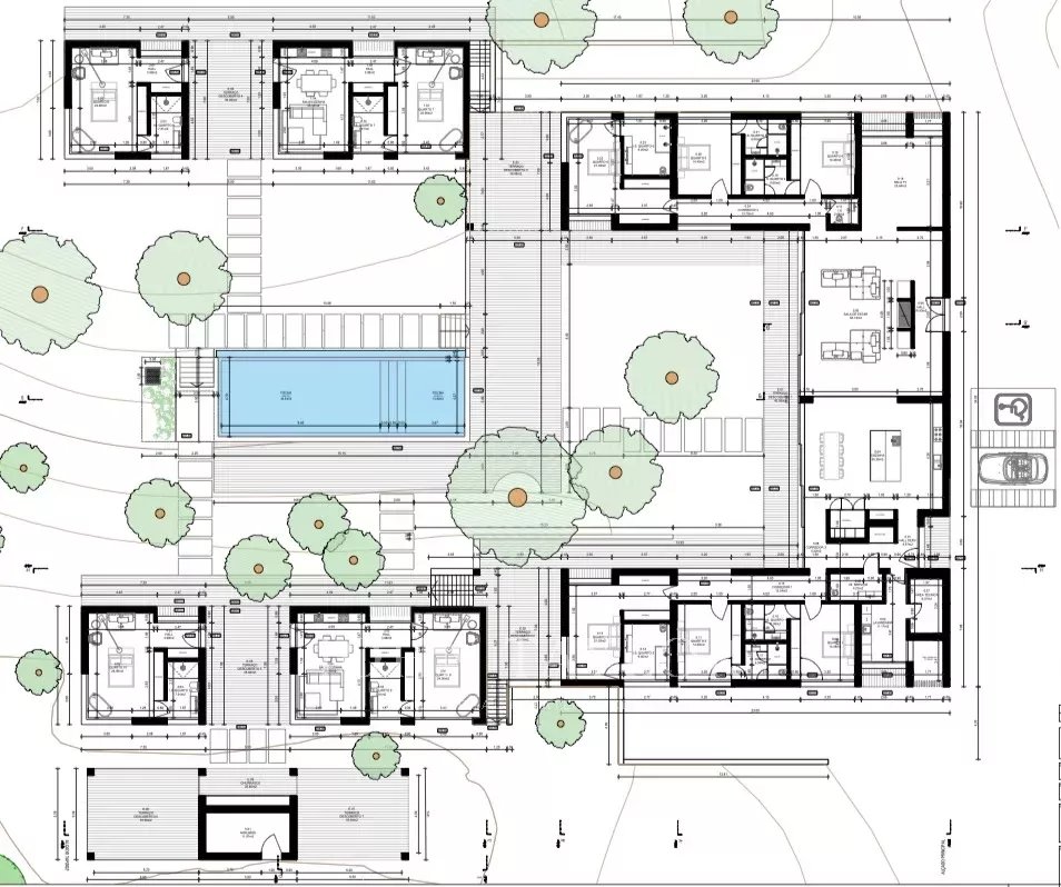
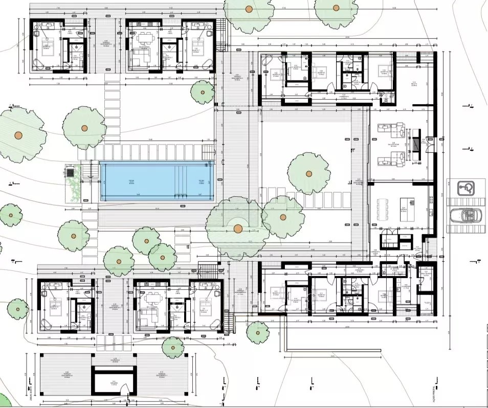
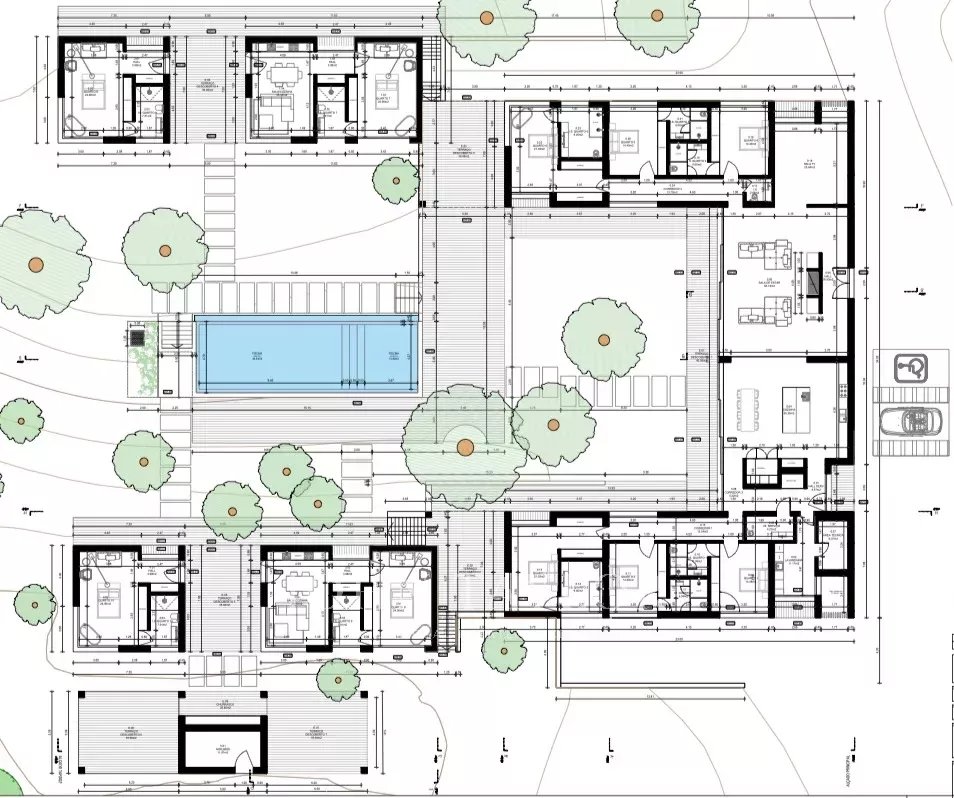
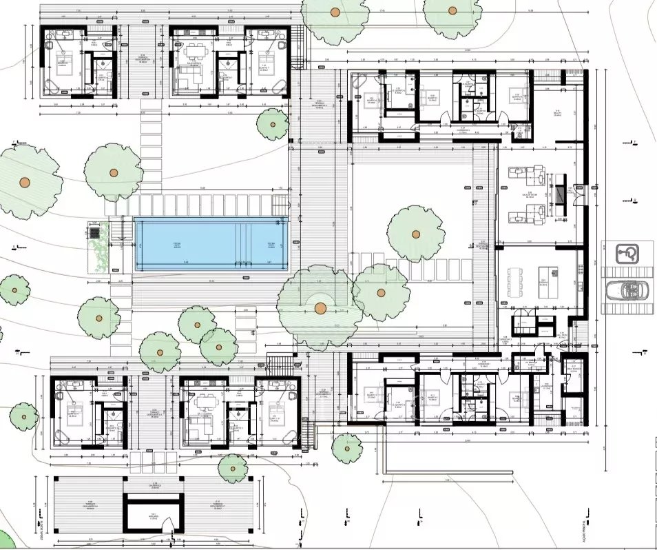
Dieses 7 Hektar große Grundstück in einer ruhigen Gegend des Alentejo in der Nähe von Santiago do Cacém ist von Korkeichen und Olivenbäumen umgeben und verfügt über ein genehmigtes Projekt für ein Privathaus von 800 m².

Das Design ist modern und unaufdringlich, angepasst an die natürliche Landschaft. Das Haupthaus ist 500 m² groß und verfügt über sechs Schlafzimmer mit eigenem Bad, geräumige Wohn- und Essbereiche mit offenem Blick, eine voll ausgestattete Küche und einen privaten Kinoraum.

Ein zweites Gebäude, fünf Meter vom Haupthaus entfernt, beherbergt vier Suiten - ideal für Gäste oder Mitarbeiter.

Das Anwesen liegt etwa 1 Stunde und 30 Minuten (145 km) von Lissabon und dem internationalen Flughafen entfernt und ist über die Autobahn leicht zu erreichen.

luxusimmobilienagentu COMPORTA
  • TMP Real Estate, Lda
    Rua do Arroz, 51 – Lj.
  • 7570-782 COMPORTA
  • GRANDOLA, PORTUGAL

John Taylor
Online-Anfrage

* Pflichtfelder
Die gesammelten Informationen sind notwendig, um Ihre Anfrage zu bearbeiten. Sie haben jederzeit das Recht, auf Ihre Daten zuzugreifen, sie zu ändern und zu löschen.