• Wohnung zum Verkauf Centro, Justicia, Madrid
    3 500 000 EUR

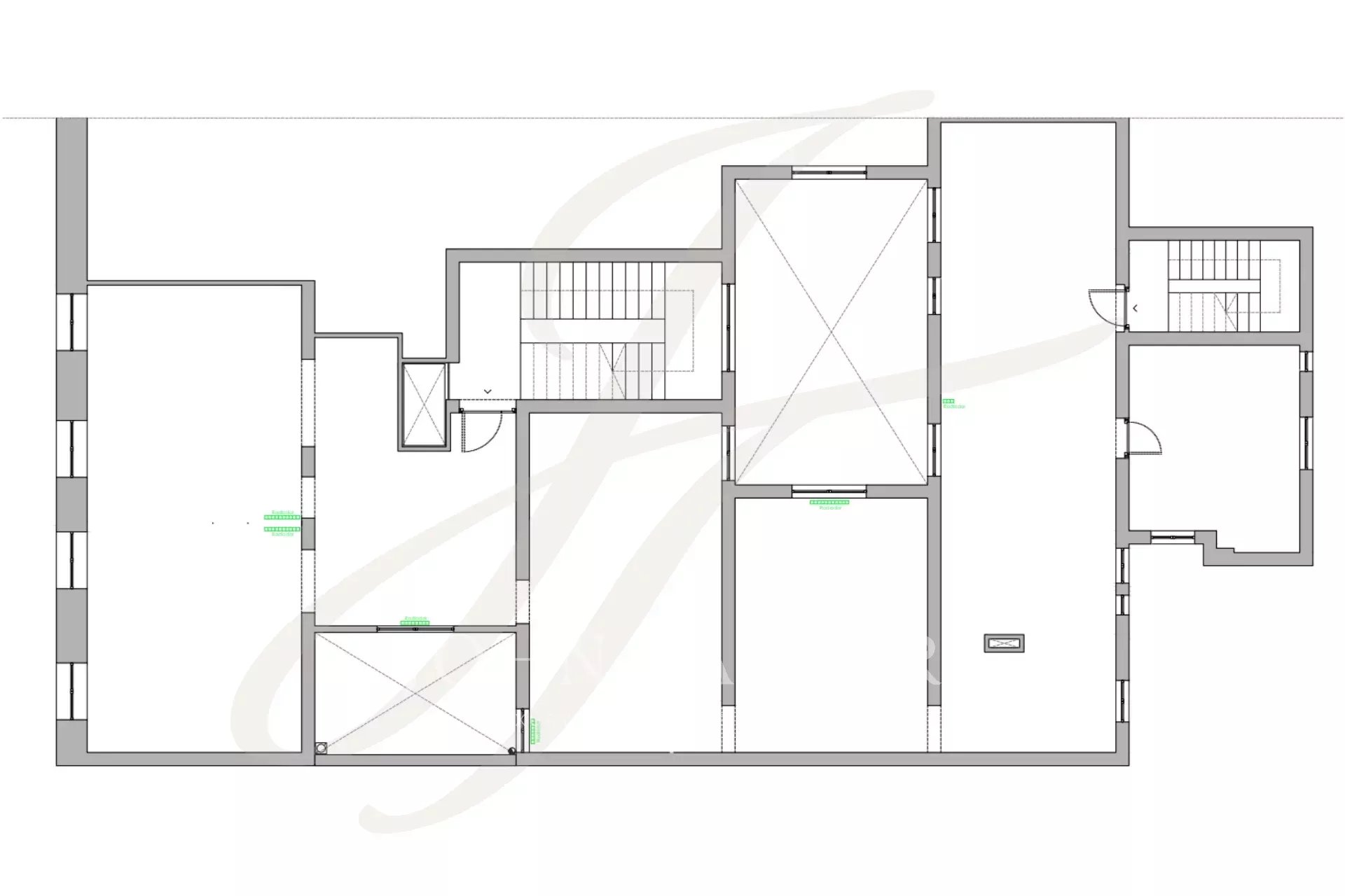
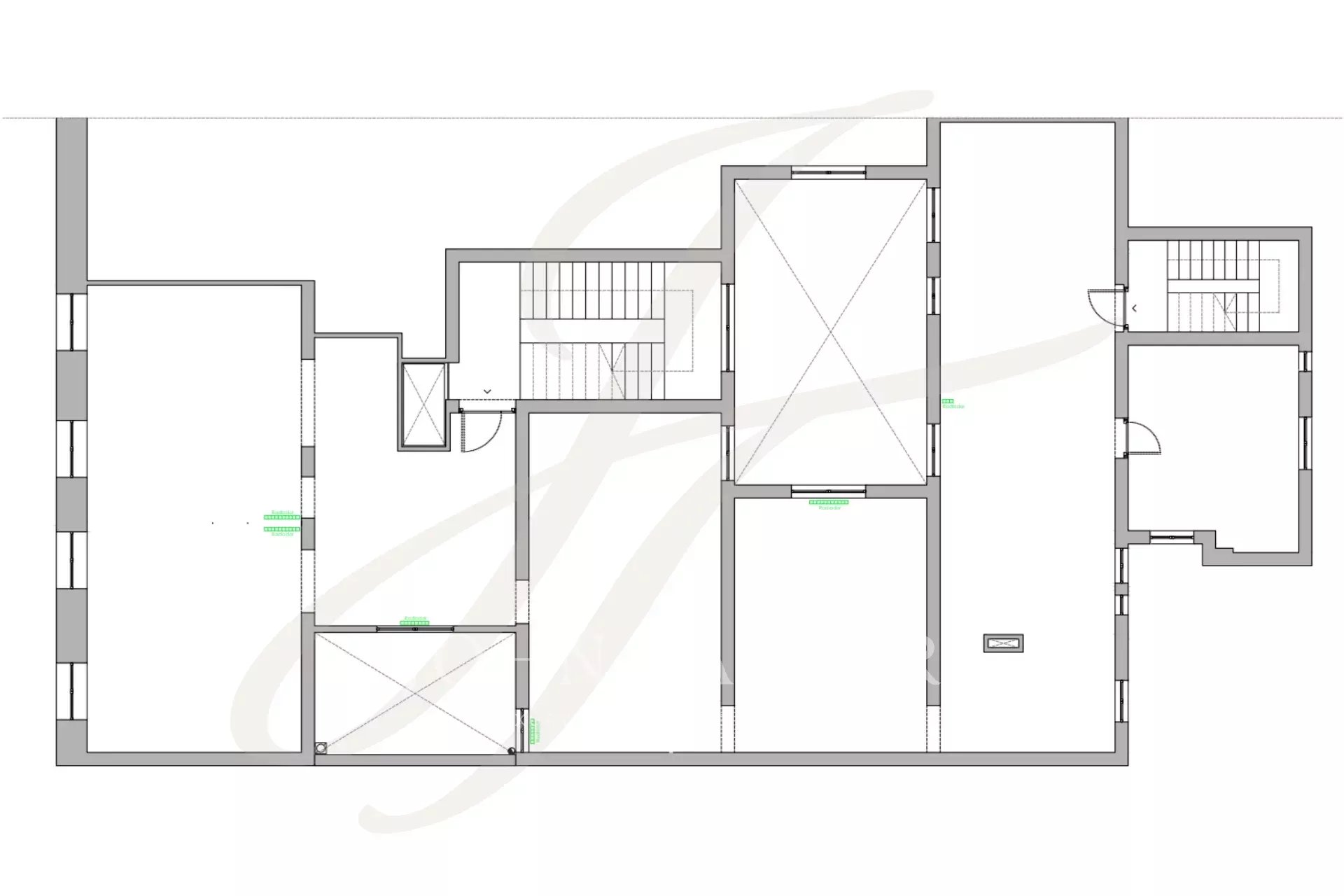
Wohnfläche 252 m²252 m²4 Schlafzimmer4 SchlafzimmerStockwerk 6/8Stockwerk 6/8Ausrichtung East East Aussicht Uneingeschränkt Uneingeschränkt KlimaanlageKlimaanlage

Exklusives Projekt zur Renovierung mit Blick auf den Place de la Villa de Paris

  • V0609MCH
  • Verkauf
  • Wohnung

In einer der emblematischsten Adressen Madrids bietet diese 252 m² große Wohnung im sechsten Stockwerk eine außergewöhnliche Gelegenheit, einen Wohnsitz auf hohem Niveau mit offenem und privilegiertem Blick auf den Place de la Villa de Paris zu schaffen.

Die komplett zu renovierende Wohnung zeichnet sich durch ihre großzügigen Räume und ihre praktisch offene Raumaufteilung aus, die eine flexible und elegante Neuaufteilung ermöglicht. Das Projekt bietet Platz für drei oder vier Schlafzimmer mit eigenem Bad, ein Gäste-WC, ein Dienstzimmer, eine Waschküche und einen großen Sozialbereich, der als zusammenhängender Raum konzipiert ist.

Die großformatigen Fenster durchfluten das Haus mit natürlichem Licht und machen die Aussicht zu einem seiner wichtigsten Attribute, die ihm Tiefe, Charakter und ein bemerkenswertes Gefühl von Geräumigkeit verleihen.

Eine Immobilie mit außergewöhnlichem Potenzial in einer unwiederholbaren Lage.
Ein erstklassiges Wohnprojekt an einem der bedeutendsten Plätze der Hauptstadt.

Umgebung

  • Bus
  • Metro
  • Läden
  • Stadtzentrum
  • Öffentlicher Parkplatz
  • Kino

luxusimmobilienagentu MADRID - CHAMBERI
  • JT REAL ESTATE CHAMBERI/CENTRO SL
    Plaza de las Salesas, 6
  • 28004 MADRID - CHAMBERI
  • SPANIEN

John Taylor
Online-Anfrage

* Pflichtfelder
Die gesammelten Informationen sind notwendig, um Ihre Anfrage zu bearbeiten. Sie haben jederzeit das Recht, auf Ihre Daten zuzugreifen, sie zu ändern und zu löschen.